34 S. Erie St. - 507, Toledo, OH 43604
34 S. Erie St. - 507, Toledo, OH 43604
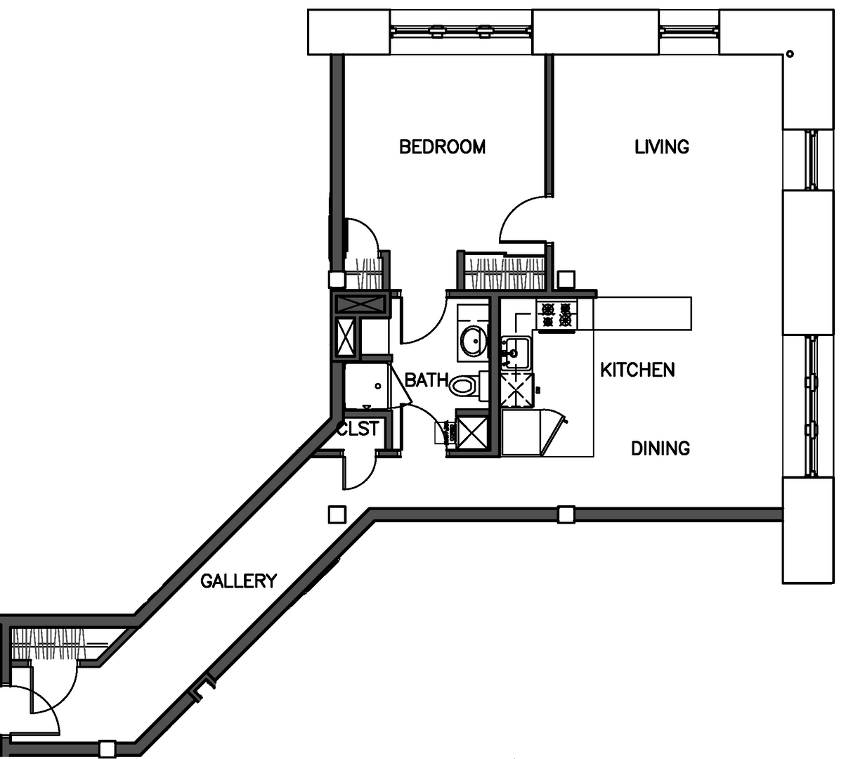
Chic, Urban Living Awaits You in this 1 BR Loft!
Standart Lofts showcase a flawless blend of historic charm with contemporary sophistication. Our lofts feature unique, open floor plans, modern-day amenities, and cherished style of a bygone era. History is preserved in elements of exposed brick, arched windows, wood beams, tall ceilings, and exposed ductwork, wonderfully mingled with modern comforts including central heat/air, stainless steel appliances, granite countertops, polished porcelain tile, maple cabinets, in-unit washer and dryer, ample closet space, superb natural light, and panoramic city views. Standart Lofts is nestled in the heart of the Historic Warehouse District in downtown Toledo within walking distance of retail, dining, parks and recreation, major businesses and employers, medical facilities, and entertainment venues including Fifth Third Field, Hensville, the Maumee River, Middle Grounds Metropark, Huntington Center, Promenade Park, Toledo’s Farmers Market on Erie Street, and Seagate Convention Center. Our location just off I-75 and the Anthony Wayne Trail makes for a convenient commute to the University of Toledo, the Toledo Zoo and Hollywood Casino in Rossford, and nearby West Toledo, Perrysburg, Maumee, and Oregon.
Contact us:





























